华宇御璟首玺
参考单价:14700元/㎡
参考总价:145-350万/套
业态:洋房,别墅
房型:三房,四房
交房:2024年12月
区域:渝北-中央公园
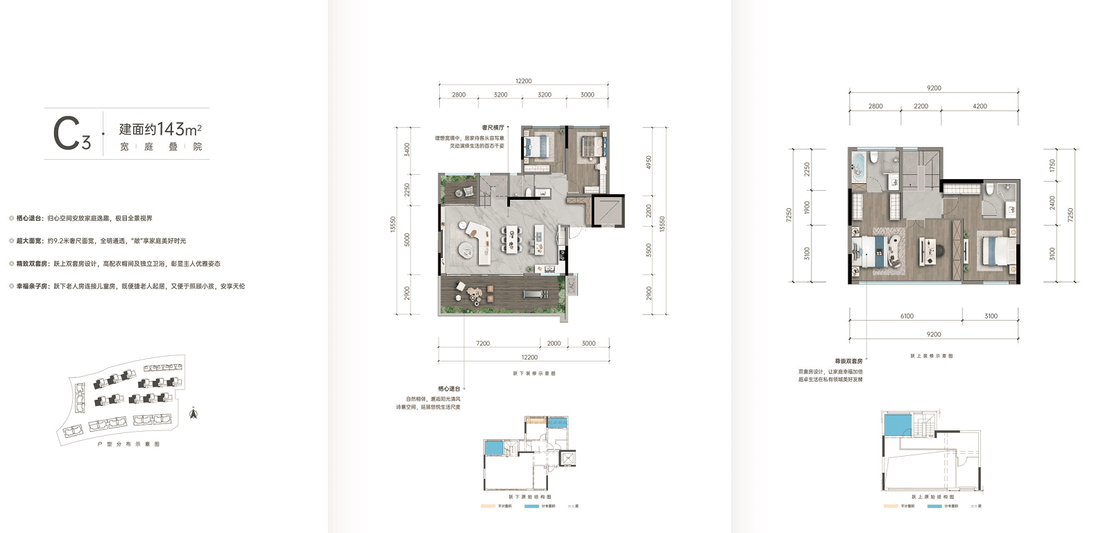
户型图
周边配套
地铁
华宇御璟首玺就在象屿光海旁边,距离最近的地铁站也是9号线的从岩寺站,步行距离大概300米,往前一个站可在中央公园东换乘10号线
商业
日常生活主要依靠空港佳园人才公寓的配套,现在已经成熟,火锅、烤鱼、烧烤、药店都有,晚上还有夜市,卖各种小吃、炒饭、蒸菜。大型商业需要去4公里之外的两江商务中心,或等光环开业以后坐9号线去一站之外的中央公园东
医疗
渝北区人民医院(三甲)
学校
旁边有两所在建的学校,有传言是七龙珠学校,但能不能划片入读还是未知数。另外,在空港佳园旁边还有已经开学的悦港中学和空港佳园小学
华宇御璟首玺最新优惠
基本信息
开发商:重庆盛悦佳宁房地产开发有限公司
总户数:580户
容积率:1.5
绿化率:30%
产权年限:50年
物业公司:华宇第一太平戴维斯物业
物业费:3.6元/m²/月
